
Luxury Tiny house-The Jetstone Model The Jetstone: Luxury 1-Bedroom Modular Retreat & Dedicated Office
The Jetstone is the definition of focused, functional luxury. Named after the refined, dark gemstone, this 1-bedroom modular tiny home is engineered as a jewel-box retreat—perfect for a high-end weekend escape, an income-generating short-term rental unit, or a sophisticated, detached home office.
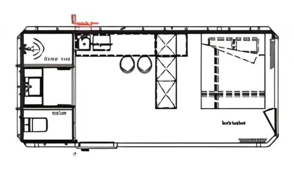
Measuring Length: 7.5m x Width: 3.3 m x Height: 3.3m , The Jetstone maximizes every one of its 24.75 sqm to deliver an experience of open, airy solitude unmatched in this class.








Design Highlights: Light, Space, and Focus
The Jetstone’s architectural distinction lies in its commitment to light and functionality:
-
Panoramic Sunroof: The ultimate luxury feature. A stunning Panoramic Sunroof fills the main living space with natural light, blurring the lines between indoor comfort and the Australian sky above.
-
Living / Office Area: Unlike typical 1-bedroom designs, The Jetstone includes a separate, dedicated Living/office area. This critical zone transforms the space into a highly functional working retreat or a permanent ADU.
-
Expansive Glass Walls: Large, double-glazed glass walls wrap around the living space, ensuring energy efficiency while providing immersive, uninterrupted views of your landscape.
-
Smart Bath & Storage: The bathroom maximizes privacy and efficiency with a separate toilet and shower area, alongside sleek wardrobes that integrate seamlessly into the design, providing ample storage without clutter.
This model proves that world-class architecture and superior luxury can be delivered in a concise, highly efficient footprint. The Jetstone is more than a tiny house; it is your ultimate investment in focused, luxurious living.