
The Juniper: Luxury 2-Bedroom Modular Home for Panoramic Living
The Juniper stands as the definitive expression of functional, light-filled luxury modular tiny home architecture. Designed for the discerning buyer who refuses to compromise on space or spectacular views, this 2-bedroom model is the perfect solution for family living, high-end guest accommodation, or an exclusive tourism retreat in the Australian landscape.
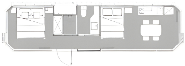
The Juniper delivers a sophisticated and practical layout, ensuring comfortable shared living within its efficient footprint while maximizing connection to the outdoors.
Architectural Grandeur: The 270° View
The defining feature of The Juniper is its breathtaking commitment to natural light and immersion.
-
270° Panoramic Glass Walls: The front and rear facades are wrapped in 270-degree double-glazed panoramic glass walls. This architectural feat dissolves the boundary between the interior and the environment, flooding the open-plan living areas with light while the double-glazing maintains superior energy efficiency and temperature regulation.
-
Double Panoramic Sunroofs: Adding to the luminous experience, double panoramic sunroofs crown the ceiling, inviting natural light deep into the core of the home and creating a truly uplifting, sun-drenched atmosphere throughout the day.
Functional Luxury for Shared Living
The interior layout of The Juniper is designed for seamless, comfortable habitation by multiple people:
-
Two Private Suites: The design incorporates two separate bedrooms, each complete with built-in wardrobes, offering essential storage and privacy for residents or guests.
-
Open Concept Heart: The central living area flows effortlessly into the open kitchen and dining space, creating an inviting environment for cooking, entertaining, and relaxing together.
-
Refined Amenities: Completing the functionality is a meticulously designed wet area featuring a desirable separation between the bath and shower zones, ensuring convenience and utility for both bedrooms.
The Juniper is more than just a home; it’s a light-filled sanctuary where every view is a masterpiece.





